Недвижимость

1 комнатная квартира на Каирбекова 453

Адрес: г. Костанай, Каирбекова 453 | Район города: КСК

Описание

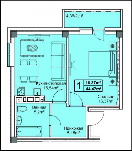
овое ЖК Семья в районе КСК является перспективным районом с новой запланированной инфраструктурой. Мы строим дома не выше 4-этажей, что означает небольшое количество соседей. Пластиковые окна,..

овое ЖК Семья в районе КСК является перспективным районом с новой запланированной инфраструктурой. Мы строим дома не выше 4-этажей, что означает небольшое количество соседей. Пластиковые окна, неугловая, улучшенная, комнаты изолированы, кладовка, счётчики, тихий двор. Успейте приобрести 1 ком квартиру площадью 45 кв. м в ЖК семья! ЖК семья расположен в районе КСК, рядом с магазином "Лента". Срок сдачи: *1й дом - август 2022 г * 2й дом - декабрь 2022 г. * 3й дом - август 2023 г

Общая информация

  • #:

  • Опубликовано:

  • Этаж:

  • 484449

  • 18.04.26

  • 2

  • Цена:

  • Площадь:

  • Этажей всего:

  • 12 674 000 ₸

  • 45 м2

  • 5

Позвонить